Villages At Summerfield
Your Premier Home Construction Company In Godfrey, IL
Villages At Summerfield
Floor Plans & Available Lots
The Villages at Summerfield marks the fourth phase of this subdivision, offering an array of prime home sites in a highly sought-after location. This phase features 33 newly available lots, including wooded walk-out lots, spacious flat lots, and corner lots. Click here for more information.
Timeless Architectural Styles
These homes showcase the latest trends in residential architecture. They have the charm and character of Craftsman and Cottage-style designs. These styles reflect the early 1900s homes, with exteriors featuring brick/stone accents, board-and-batten siding, shaker shingles, and more.
Designed for Modern Living
These homes are designed with functionality and comfort in mind. Floor plans emphasize open-concept living and expansive Great Rooms. The split-bedroom layouts offer privacy for homeowners and guests alike. This community is both beautiful and practical!
Professional Construction Services
The Villages at Summerfield is a charming residential community located in Illinois, offering a peaceful suburban setting with convenient access to local amenities, schools, and major roadways. As the fourth phase of the Summerfield Subdivision, this community features beautifully designed homes in a variety of lot sizes, including wooded walk-outs, spacious flats, and corner lots. Residents enjoy a thoughtfully planned neighborhood with timeless architectural styles, open green spaces, and a welcoming atmosphere. With a focus on quality craftsmanship and modern living, The Villages at Summerfield provides the perfect balance of comfort, style, and convenience for homeowners looking to settle in a thriving and picturesque community.
Available Lots
Lot# 142
Lot# 143
Lot# 144 - SOLD
Lot# 145
Lot# 146 - SOLD
Lot# 147
Lot# 148
Lot# 149
Lot# 150
Lot# 151
Lot# 152
Lot# 153
Lot# 154
Lot# 155
Lot# 156
Lot# 157
Lot# 158
Lot# 159
Lot# 160
Lot# 161
Lot# 162
Lot# 163
Lot# 164
Lot# 165
Lot# 166
Lot# 167
Lot# 168 - SOLD
Lot# 169
Lot# 170 - SOLD
Lot# 171 - SOLD
Lot# 172 - SOLD
Lot# 173 - SOLD
Lot# 174 - SOLD
Lot# 158 - SOLD
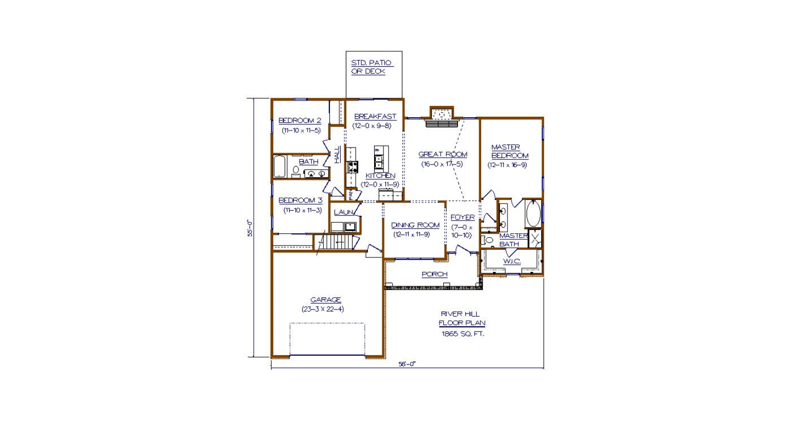
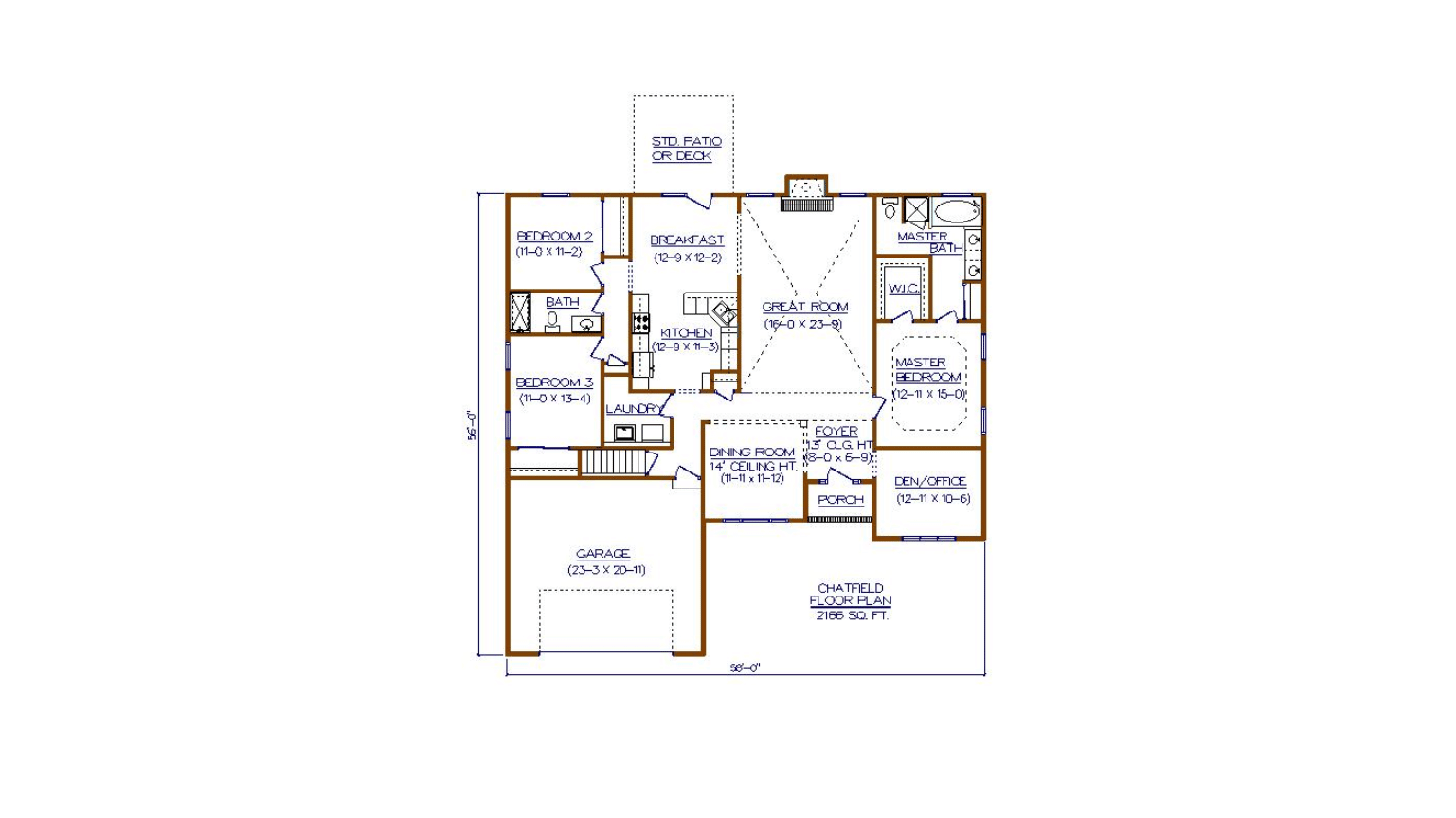
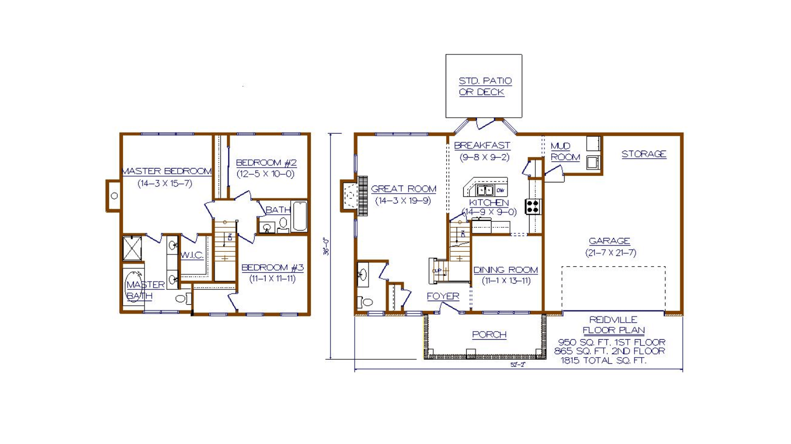
Floor Plans
At Homes By Emmons & Cress, you will have the choice of many different floor plans. We have plans of all styles to fit your size, flow, and function of style.




















